Good-Bye Tiny Kitchen!

Where’s the Delorean? This house was stuck stuck stuck in the 80’s and needed a time machine FAST!. The client’s had a particular vision for the home they just closed the deal on to quickly discover the island of their dreams wouldn’t fit in kitchen the way they imagined.

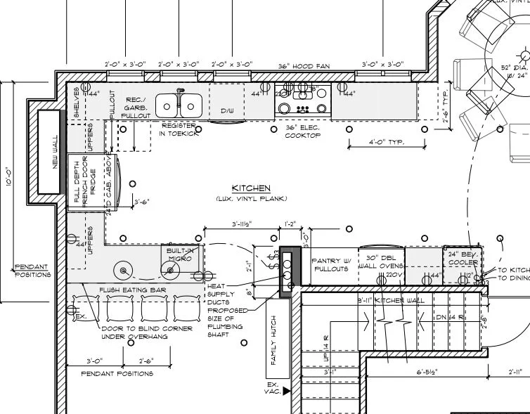
PANIC FIRST, then call Flawless Interiors (not the best approach, but it worked out). Through proper planning and design the “island dreams” we’re modified into a new layout that involved expanding the kitchen into the old dining room and opened up walls to create a large, bright and much more functional main floor flow.

What a difference!

 

Client Testimonial

“If I had to encapsulate your work in one word, it would be “fresh”! Ok, twist my arm! “Flawless” too!”

Marlene O.


Gallery

 

How Did That Happen?

Every project relies on the proper planning. Here is just a glimpse of some of the work that goes into planning and a few before shots!

Book Your Initial Consultation
 
Next Project